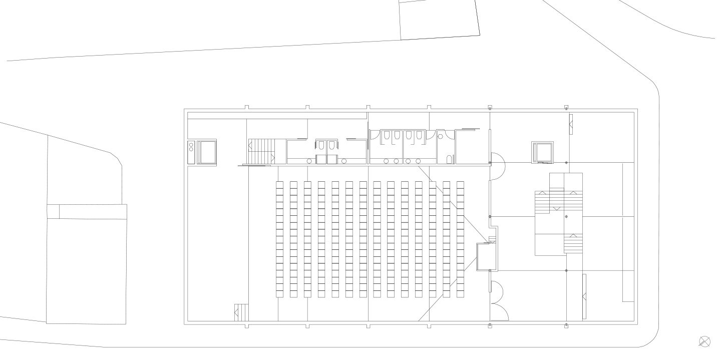
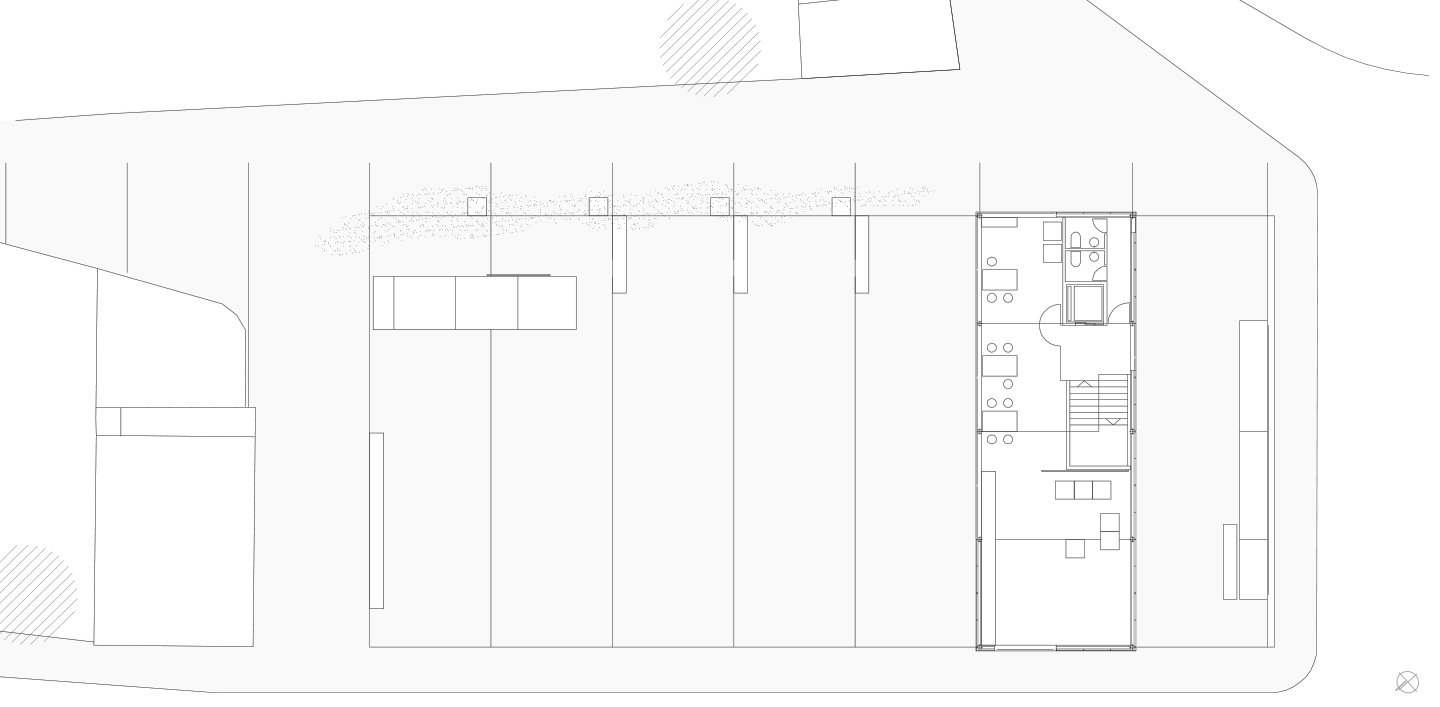
casa de la cultura en cervo 2OO1    concurso

espacio de convivencia

en colaboración con jorge manuel salgado cortizas


© carreira montes arquitectura| Saúl Vérez | política de privacidad y cookies | aviso legal 

todos-logos-europa
© Copyright Architecturer Theme Demo - Theme by ThemeGoods