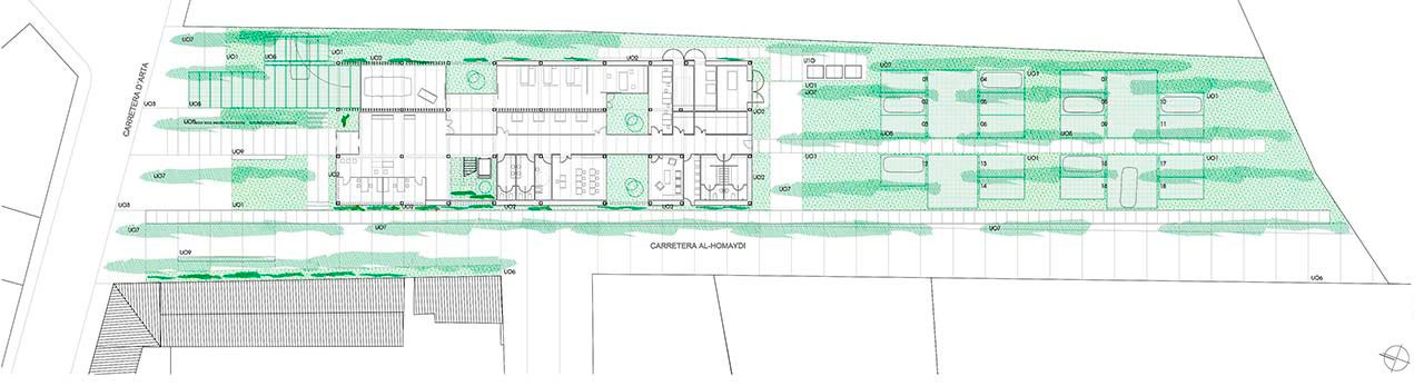
centro de saúde santa margalida en mallorca 2O19 concurso 2º premio
matiz mediterráneo